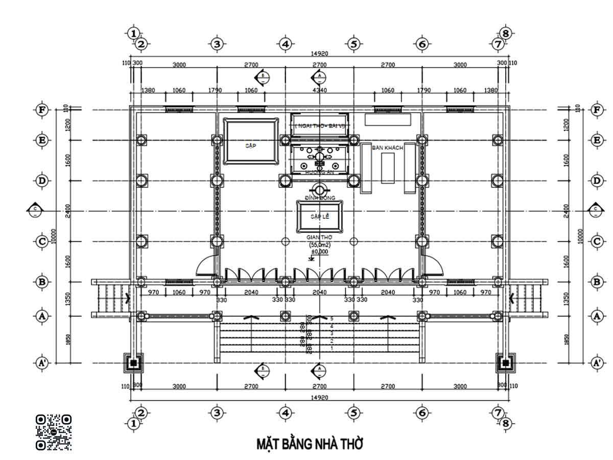
Thiết kế nhà thờ 5 gian 2 mái cho khách Hải Phòng
THÔNG TIN DỰ ÁN
| Tên công trình | Thiết kế thi công nhà thờ 5 gian 2 mái cho khách tại Hải Phòng | 
| Chất liệu: | Kết cấu gỗ Gõ | 
| Kích thước: | Tổng thể 600m2 | 
| Phương thức: | Thiết kế thi công trọn gói, bao gồm cả nhà ở và sân vườn | 
| Mẫu: | Nhà 5 gian 2 mái cổ truyền | 
| Thời gian bảo hành: | 10 Năm | 
		Mô tả
	  
	  
		Đánh giá
	  
	
	  Hình ảnh thiết kế 3D:







	
	



























